We have done a lot of work to upgrade this flat in Alexandra Parade


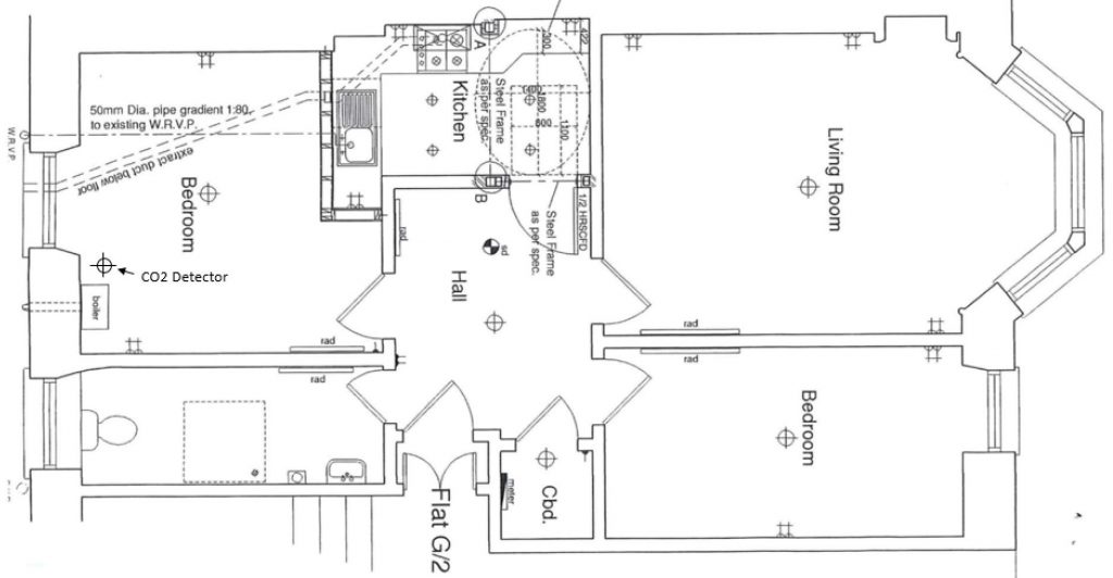
Rip out old bathroom, repair floor and then split into two to create an ensuite









Move the partition wall between bedroom and kitchen





Build cupboard around the boiler






Dig out the bay window





Replace supporting wall between kitchen and hall with steel frame






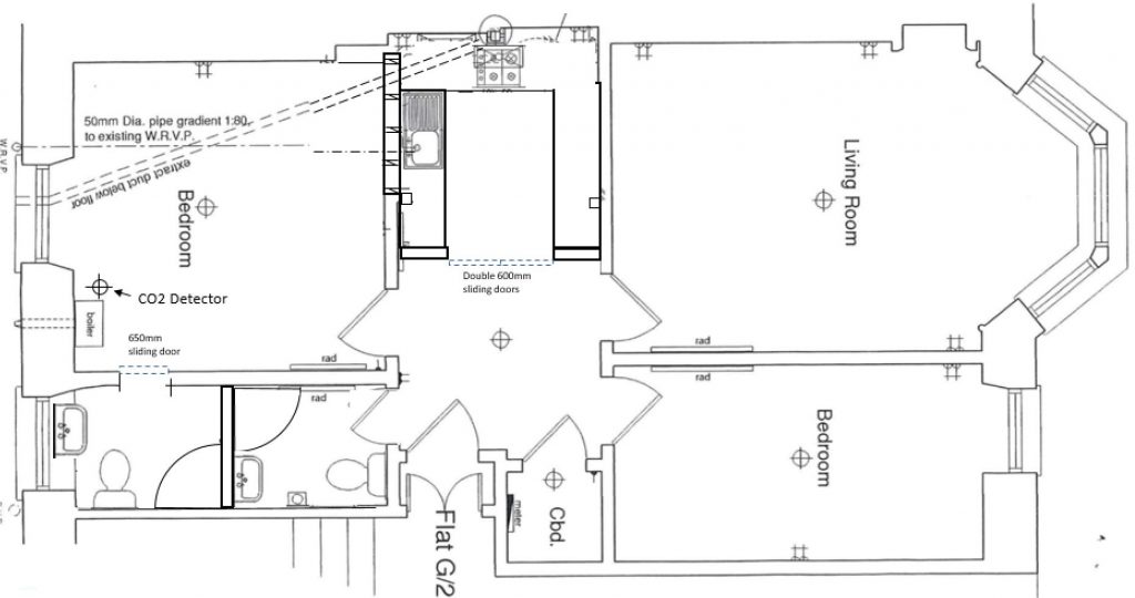
Now build new pocket wall with double sliding doors…. fire rated FD30!






Now tile, panel and floor the kitchen



Now start installing fixtures




